Phú Quốc, hòn đảo ngọc phía Nam Tổ quốc, từ lâu đã trở thành thỏi nam châm thu hút các nhà đầu tư và du khách. Trong bối cảnh đó, Khu dân cư Sun Grand City New An Thới nổi lên như một dự án trọng điểm, mang đến cơ hội an cư lý tưởng và tiềm năng kinh doanh vượt trội. Đây không chỉ là một dự án nhà ở mà còn là một phần quan trọng trong hệ sinh thái du lịch, nghỉ dưỡng đẳng cấp quốc tế của Sun Group tại Nam đảo.
Tổng Quan Dự Án Sun Grand City New An Thới
Sun Grand City New An Thới là một trong những dự án khu đô thị được mong chờ nhất tại Phú Quốc, do Công ty Trách nhiệm hữu hạn Mặt Trời Phú Quốc (Sun Group) làm chủ đầu tư. Dự án tọa lạc tại vị trí đắc địa trên tuyến đường ĐT 975, thuộc thị trấn An Thới, TP. Phú Quốc, Kiên Giang. Với tổng diện tích quy hoạch lên đến 35ha, dự án này được phát triển với tầm nhìn trở thành một khu dân cư hiện đại và sầm uất, đáp ứng nhu cầu sống và kinh doanh đa dạng của cư dân.
Mật độ xây dựng của Sun Grand City New An Thới được duy trì ở mức thấp, chỉ 28,87% tổng toàn khu, đảm bảo không gian sống thoáng đãng và gần gũi với thiên nhiên. Các sản phẩm chính bao gồm nhà phố mua sắm (shophouse) và nhà phố tiếp giáp, được thiết kế tinh tế với nhiều loại diện tích đa dạng, từ 6m x 20m, 7,5m x 14m, 7,5m x 16m, 8m x 18m, 8m x 20m đến 8m x 22m. Dự án được khởi công vào Quý III/2019 và đã bàn giao từ Quý I/2021, mang đến tính pháp lý vững chắc với sổ hồng sở hữu lâu dài cho người Việt Nam.
Vị Trí Kim Cương Của Sun Grand City New An Thới
Khu dân cư Sun Grand City New An Thới được mệnh danh là sở hữu vị trí huyết mạch tại Nam đảo Ngọc, nằm trên trục Đông – Tây chiến lược của Phú Quốc. Vị trí này không chỉ mang lại khả năng kết nối giao thông thuận tiện mà còn thừa hưởng toàn bộ tiềm năng từ hệ sinh thái vui chơi, nghỉ dưỡng tỷ đô của tập đoàn Sun Group. Đây chính là yếu tố cốt lõi giúp dự án trở thành một khu đô thị du lịch nổi tiếng và là cơ hội đầu tư kinh doanh đầy tiềm năng.
Từ Sun Grand City New An Thới, cư dân và du khách dễ dàng di chuyển đến Cảng Hàng không Quốc tế Phú Quốc chỉ trong khoảng 21 phút (17km) qua tuyến đường Nguyễn Văn Cừ (ĐT46). Việc kết nối đến thị trấn Dương Đông, trung tâm sầm uất của đảo, cũng chỉ mất khoảng 30 phút (20km) thông qua cung đường trọng điểm ĐT975. Sự thuận tiện trong giao thông góp phần nâng cao giá trị bất động sản và tiềm năng khai thác kinh doanh tại đây.
<>Xem Thêm Bài Viết:<>- Tổng quan Khu công nghiệp Gia Bình II Bắc Ninh
- Căn Hộ PN Techcons: Khám Phá Giá Trị Tại Quận Phú Nhuận
- Lori Greiner là ai? Tiểu sử và sự nghiệp của “Nữ hoàng QVC”
- Sách Hack Não 1500 Từ Tiếng Anh Có Tốt Không?
- Hướng Dẫn Tải Và Cài Đặt Terraria APK Full Version Free Download
Vị trí chiến lược Sun Grand City New An Thới
Thiết Kế Độc Đáo: Phong Cách Địa Trung Hải Tại New An Thới
Sun Grand City New An Thới gây ấn tượng mạnh mẽ với lối kiến trúc Địa Trung Hải độc đáo, mang đến một không gian sống tràn ngập màu sắc và tinh thần phóng khoáng. Mỗi căn nhà tại đây đều là một tác phẩm nghệ thuật, với những đường cong mềm mại, mái vòm đặc trưng và gam màu tươi sáng, tạo nên một tổng thể hài hòa và quyến rũ. Các chi tiết thiết kế đều được chăm chút tỉ mỉ, từ những ô cửa sổ lớn đón nắng gió đến ban công rộng rãi, tối ưu hóa tầm nhìn và trải nghiệm sống cho cư dân.
Các căn nhà phố thương mại và nhà phố liền kề trong dự án được xây dựng với chiều cao 5 tầng, nổi bật với mặt tiền rộng từ 6m đến 8m, mang lại không gian linh hoạt cho cả mục đích ở và kinh doanh. Việc trang bị vách kính cường lực trong suốt ở mặt tiền giúp tối ưu hóa không gian trưng bày, thu hút khách hàng cho các hoạt động thương mại. Thiết kế này không chỉ đẹp mắt mà còn đề cao sự tiện nghi và hòa mình vào cảnh quan xung quanh.
Phối cảnh tổng thể Khu dân cư Sun Grand City New An Thới
Hệ Thống Tiện Ích Đa Dạng Tại Khu Dân Cư Sun Grand City New An Thới
Sun Grand City New An Thới được quy hoạch là một khu đô thị đảo nghỉ dưỡng tiên phong tại Phú Quốc, không chỉ chú trọng đến kiến trúc mà còn đầu tư mạnh mẽ vào hệ thống tiện ích đẳng cấp, mang đến một cuộc sống tiện nghi và trọn vẹn cho cư dân. Các tiện ích được phân bổ hợp lý, tạo nên một cộng đồng khép kín, tự cung tự cấp, đồng thời kết nối dễ dàng với các điểm nhấn du lịch lân cận.
Tiện Ích Nội Khu: Nâng Tầm Chất Lượng Sống
Trong nội khu Sun Grand City New An Thới, cư dân sẽ được tận hưởng hệ thống tiện ích đa dạng và hiện đại. Điểm nhấn là bốn công viên chủ đề độc đáo: Limoni, Riva, Seta và Pino, mỗi công viên mang một phong cách riêng biệt, cung cấp không gian xanh mát để thư giãn, vui chơi và tập luyện. Bên cạnh đó, dự án còn tích hợp các tiện ích thiết yếu như bệnh viện quốc tế, trường học quốc tế, khu phức hợp thể thao, đảm bảo mọi nhu cầu về y tế, giáo dục và rèn luyện sức khỏe.
Các tiện ích khác bao gồm con đường tản bộ ven sông thơ mộng, quảng trường âm nhạc sôi động, vườn hoa bốn mùa rực rỡ sắc màu, đài phun nước đàn Lia nghệ thuật, chòi nghỉ mái vòm, Coffee Arc và đồi tùng. Sự đa dạng này không chỉ tạo nên môi trường sống lý tưởng mà còn góp phần nâng cao chất lượng cuộc sống cho cộng đồng cư dân tại khu dân cư Sun Grand City New An Thới. Hệ thống hạ tầng đường xá nội khu cũng được trang hoàng bởi những luống hoa rực rỡ, tạo nên một bức tranh đô thị đẹp mắt.
Hệ thống tiện ích nội khu Sun Grand City New An Thới
Tiện Ích Ngoại Khu: Tận Hưởng Hệ Sinh Thái Du Lịch Đỉnh Cao
Sự hấp dẫn của Sun Grand City New An Thới còn đến từ khả năng kết nối linh hoạt với chuỗi tiện ích ngoại khu đẳng cấp. Chỉ mất khoảng 5-10 phút di chuyển, cư dân có thể tiếp cận hàng loạt khu nghỉ dưỡng tỷ đô của Sun Group tại Nam Đảo như JW Marriott Phu Quoc Emerald Bay, Sun Premier Village The Eden Bay, Sun Premier Village Kem Beach Resort, Premier Residences Phu Quoc Emerald Bay, và Sun Premier Village Primavera.
Ngoài ra, các điểm vui chơi giải trí hàng đầu như Sun World Hòn Thơm Nature Park với cáp treo vượt biển dài nhất thế giới và công viên nước Aquatopia cũng nằm trong tầm tay. Vị trí đắc địa này tạo điều kiện thuận lợi cho việc khai thác kinh doanh du lịch, đặc biệt là các mô hình khách sạn, nhà hàng, phục vụ lượng lớn du khách và chuyên gia làm việc tại các khu nghỉ dưỡng lân cận.
Công viên nước Aquatopia Sun World Hòn Thơm
Các Loại Hình Sản Phẩm Tại Sun Grand City New An Thới
Khu đô thị Sun Grand City New An Thới mang đến đa dạng các loại hình sản phẩm bất động sản, được thiết kế tối ưu công năng, phù hợp cho cả mục đích an cư và đầu tư kinh doanh. Sự đa dạng này giúp nhà đầu tư và khách hàng dễ dàng lựa chọn sản phẩm phù hợp với nhu cầu và chiến lược của mình.
Shophouse: Cơ Hội Kinh Doanh Hấp Dẫn
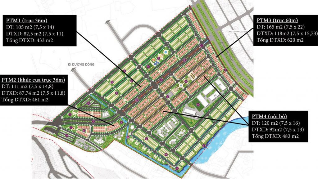
Các căn nhà phố thương mại (shophouse) tại Sun Grand City New An Thới được quy hoạch nằm trên mặt tiền Đại lộ New An Thới và Đại lộ Gate Way, những trục đường huyết mạch dẫn ra nhà ga cáp treo Hòn Thơm với hàng nghìn lượt khách mỗi ngày. Vị trí đắc địa này mang lại tiềm năng kinh doanh vượt trội cho các loại hình dịch vụ như nhà hàng, khách sạn mini, cửa hàng tiện lợi, spa, hay các văn phòng cho thuê. Với thiết kế 5 tầng và mặt tiền rộng, các căn shophouse có tổng diện tích sử dụng lên tới 600m2, linh hoạt để chủ sở hữu tùy biến theo mục đích kinh doanh.
Điển hình là các mẫu nhà hàng và khách sạn được thiết kế công năng tối ưu, phục vụ nhu cầu kinh doanh đa dạng. Việc sở hữu một căn shophouse tại đây không chỉ là đầu tư vào một bất động sản mà còn là đầu tư vào một kênh kinh doanh tiềm năng, tận dụng lợi thế từ nguồn khách du lịch dồi dào và cộng đồng dân cư sôi động. Đây được xem là lựa chọn hàng đầu cho những nhà đầu tư chuyên nghiệp mong muốn tạo dòng tiền ổn định tại Phú Quốc.
Mặt bằng chi tiết phân khu shophouse Sun Grand City New An Thới
Nhà Phố Liên Kế: Không Gian Sống Lý Tưởng
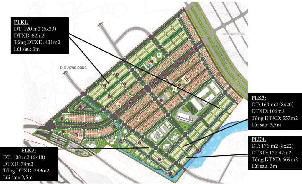
Bên cạnh shophouse, các căn nhà phố liên kế tại Sun Grand City New An Thới cung cấp một không gian sống lý tưởng, đặc biệt phù hợp với những gia đình mong muốn an cư tại đảo Ngọc. Các căn nhà phố này có vị trí thuận lợi, gần kề các công viên nội khu với cây xanh mát mẻ, hồ cảnh quan yên bình và đầy đủ các tiện ích phục vụ nhu cầu sống hàng ngày.
Mỗi căn nhà đều được thiết kế tối ưu để đón ánh sáng và gió tự nhiên, tạo cảm giác thoải mái và thư thái. Cư dân có thể dễ dàng tiếp cận các khu vui chơi giải trí, trường học, bệnh viện, mang đến một cuộc sống tiện nghi, hiện đại nhưng vẫn giữ được sự riêng tư và gần gũi với thiên nhiên. Đây là lựa chọn hoàn hảo cho những ai tìm kiếm một tổ ấm chất lượng cao tại một trong những khu đô thị đáng sống nhất Phú Quốc.
Mặt bằng chi tiết dãy nhà liền kề Sun Grand City New An Thới
Mặt Bằng Và Quy Hoạch Chi Tiết Dự Án Sun Grand City New An Thới
Sun Grand City New An Thới là khu đô thị đầu tiên tại đảo Ngọc Phú Quốc được quy hoạch một cách chỉnh chu và đồng bộ nhất, thể hiện tầm nhìn của một tập đoàn bất động sản hàng đầu Việt Nam. Mặt bằng tổng thể dự án được thiết kế khoa học, tối ưu không gian sống và kinh doanh, mang đến một giá trị chưa từng có cho cư dân Phú Quốc.
Tổng thể dự án được chia thành nhiều phân khu chức năng rõ ràng, bao gồm các khu nhà phố thương mại, nhà phố liền kề, công viên cây xanh, trường học quốc tế, bệnh viện quốc tế và các tiện ích công cộng khác. Sự phân chia hợp lý này giúp tạo nên một môi trường sống năng động nhưng vẫn đảm bảo sự riêng tư và tiện nghi cho từng khu vực. Đường nội bộ rộng rãi, cây xanh rợp bóng và hệ thống chiếu sáng hiện đại góp phần hoàn thiện bức tranh về một đô thị kiểu mẫu.
Mặt bằng phân lô tổng thể Sun Grand City New An Thới
Giá Trị Đầu Tư Bền Vững Của Sun Grand City New An Thới
Việc lựa chọn Sun Grand City New An Thới không chỉ là một quyết định mua nhà mà còn là một khoản đầu tư chiến lược với tiềm năng sinh lời bền vững. Một trong những yếu tố quan trọng nhất là tính pháp lý rõ ràng, với việc cấp sổ hồng sở hữu lâu dài cho người Việt Nam, mang lại sự yên tâm tuyệt đối cho các nhà đầu tư và chủ sở hữu. Đây là một lợi thế cạnh tranh lớn trên thị trường bất động sản Phú Quốc.
Phú Quốc đang trên đà phát triển mạnh mẽ về du lịch và kinh tế, với sự đầu tư hàng tỷ đô la vào hạ tầng và các khu nghỉ dưỡng đẳng cấp. Sun Grand City New An Thới nằm ngay trung tâm của sự phát triển này, được bao quanh bởi các khu nghỉ dưỡng sang trọng, casino Hòn Thơm và nhiều địa danh du lịch nổi tiếng. Điều này đảm bảo nguồn khách hàng dồi dào cho các hoạt động kinh doanh tại shophouse, cũng như tiềm năng tăng giá bất động sản trong tương lai. Các nhà đầu tư có thể khai thác kinh doanh hoặc cho thuê lại với mức lợi nhuận hấp dẫn hàng năm.
FAQs về Khu Dân Cư Sun Grand City New An Thới
1. Sun Grand City New An Thới tọa lạc ở đâu?
Sun Grand City New An Thới nằm tại đường ĐT 975, thuộc thị trấn An Thới, Thành phố Phú Quốc, tỉnh Kiên Giang, Việt Nam.
2. Chủ đầu tư dự án Sun Grand City New An Thới là ai?
Chủ đầu tư của Sun Grand City New An Thới là Công ty Trách nhiệm hữu hạn Mặt Trời Phú Quốc (Sun Group), một tập đoàn uy tín hàng đầu trong lĩnh vực bất động sản tại Việt Nam.
3. Các loại hình sản phẩm chính tại Sun Grand City New An Thới là gì?
Dự án cung cấp hai loại hình sản phẩm chính là nhà phố thương mại (shophouse) và nhà phố liên kế, với nhiều diện tích đa dạng để phù hợp với nhu cầu của khách hàng và nhà đầu tư.
4. Mật độ xây dựng của Sun Grand City New An Thới là bao nhiêu?
Mật độ xây dựng của toàn khu dự án Sun Grand City New An Thới rất thấp, chỉ chiếm 28,87% tổng diện tích, đảm bảo không gian sống xanh và thoáng đãng.
5. Pháp lý của dự án Sun Grand City New An Thới như thế nào?
Dự án có tính pháp lý vững chắc, được cấp sổ hồng sở hữu lâu dài đối với người Việt Nam, mang lại sự an tâm tuyệt đối cho các chủ sở hữu.
6. Dự án có những tiện ích nội khu nổi bật nào?
Sun Grand City New An Thới tự hào với hệ thống tiện ích nội khu đa dạng, bao gồm 4 công viên chủ đề (Limoni, Riva, Seta, Pino), quảng trường âm nhạc, vườn hoa sắc màu, đường đi bộ ven sông, sân chơi thể thao, bệnh viện quốc tế, trường học quốc tế và khu thương mại.
7. Các đối tác phát triển dự án bao gồm những đơn vị nào?
Dự án được phát triển bởi sự hợp tác của nhiều đơn vị uy tín: TONKIN (thiết kế kiến trúc), FIRST GREEN (thiết kế cơ điện), EGO (thiết kế cảnh quan), và ADC (thiết kế giao thông).
8. Thời gian bàn giao của dự án Sun Grand City New An Thới là khi nào?
Dự án đã được khởi công vào Quý III/2019 và dự kiến bàn giao từ Quý I/2021, với quy cách bàn giao thô bên trong và hoàn thiện mặt ngoài.
9. Shophouse tại Sun Grand City New An Thới có tiềm năng kinh doanh không?
Các căn shophouse tại Sun Grand City New An Thới có tiềm năng kinh doanh rất lớn nhờ vị trí đắc địa trên các trục đường chính và gần nhà ga cáp treo Hòn Thơm, thu hút lượng lớn du khách và dân cư, lý tưởng cho các loại hình dịch vụ, nhà hàng, khách sạn.
10. Có nên đầu tư vào nhà phố liên kế tại Sun Grand City New An Thới để ở không?
Nhà phố liên kế tại Sun Grand City New An Thới là lựa chọn lý tưởng để ở, với vị trí gần các công viên xanh mát, hồ cảnh quan và đầy đủ tiện ích nội khu, mang đến một không gian sống yên bình, tiện nghi và chất lượng cao.
Sun Grand City New An Thới không chỉ là một dự án bất động sản mà còn là biểu tượng của sự phát triển vượt bậc tại Nam đảo Ngọc. Với vị trí đắc địa, thiết kế kiến trúc độc đáo, hệ thống tiện ích đa dạng và tiềm năng đầu tư bền vững, dự án này chắc chắn sẽ là lựa chọn hoàn hảo cho những ai tìm kiếm một tổ ấm lý tưởng hoặc một cơ hội kinh doanh sinh lời tại Phú Quốc. Đây là một điểm sáng trong bức tranh nhà đất và bất động sản của Phú Quốc, mang đến giá trị thực và cuộc sống thịnh vượng. Hãy cùng SummerLand khám phá những giá trị mà Sun Grand City New An Thới mang lại.





