Thị trường bất động sản Hà Nội luôn sôi động, đặc biệt là phân khúc căn hộ chung cư tại các khu vực đang phát triển mạnh mẽ. Trong số đó, Căn hộ chung cư S1 Sunshine City nổi lên như một điểm sáng tại Quận Bắc Từ Liêm, thu hút sự quan tâm lớn từ giới đầu tư và những người tìm kiếm không gian sống đẳng cấp. Bài viết này của SummerLand sẽ cung cấp cái nhìn toàn diện về dự án ấn tượng này.
Tổng quan dự án Sunshine City tại Bắc Từ Liêm
Dự án Sunshine City là một tổ hợp căn hộ chung cư và biệt thự liền kề shophouse quy mô lớn, được phát triển bởi Tập đoàn Sunshine Group, một trong những chủ đầu tư uy tín hàng đầu Việt Nam. Với vị trí chiến lược và tổng mức đầu tư lên đến 5.000 tỷ đồng, Sunshine City không chỉ là một khu dân cư mà còn là biểu tượng của sự sang trọng và tiện nghi tại khu vực phía Tây Bắc Hà Nội.
Giới thiệu chung về Sunshine City
Tọa lạc tại Khu đô thị Ciputra – Nam Thăng Long, Sunshine City được định vị là dự án căn hộ cao cấp, mang đến một phong cách sống hiện đại và tinh tế. Dự án không chỉ chú trọng vào thiết kế kiến trúc mà còn đầu tư mạnh vào hệ thống tiện ích chuẩn 5 sao cùng ứng dụng công nghệ 4.0, nhằm kiến tạo một không gian sống thông minh và tiện lợi cho cư dân. Sự kết hợp giữa không gian xanh và tiện ích đẳng cấp là điểm nhấn đặc biệt của dự án căn hộ Sunshine City.
Quy mô và phát triển của dự án
Sunshine City sở hữu tổng diện tích rộng lớn lên đến 05 hecta, bao gồm cả các tòa chung cư và các căn biệt thự liền kề shophouse. Các tòa chung cư được thiết kế theo phong cách hiện đại, trong khi biệt thự mang nét cổ điển, tạo nên sự đa dạng và hài hòa trong tổng thể kiến trúc. Dự án đã được hoàn thành và đi vào sử dụng từ Quý III/2019, đảm bảo pháp lý rõ ràng với hình thức sở hữu sổ đỏ vĩnh viễn, mang lại sự an tâm tuyệt đối cho các cư dân và nhà đầu tư tại khu căn hộ Sunshine City.
Lý do nên chọn Căn hộ chung cư S1 Sunshine City
Việc lựa chọn một nơi an cư không chỉ dừng lại ở vị trí mà còn ở trải nghiệm sống mà dự án mang lại. Căn hộ chung cư S1 Sunshine City tự hào kiến tạo một không gian sống lý tưởng, nơi cư dân có thể tận hưởng sự hài hòa giữa kiến trúc độc đáo, không gian xanh mát và nhịp sống sôi động.
Kiến trúc độc đáo và ấn tượng
Lấy cảm hứng từ kinh đô ánh sáng Paris hoa lệ, Sunshine City được bao bọc bởi hệ thống đèn lớn, tạo nên một “kinh đô ánh sáng” lung linh khi màn đêm buông xuống. Đặc biệt, 6 tòa cao tầng tại đây được thiết kế ánh sáng có thể thay đổi màu sắc theo chủ đề, tạo nên vẻ đẹp lộng lẫy và riêng có. Điều này không chỉ làm nổi bật dự án Sunshine City trong tổng thể cảnh quan mà còn góp phần mang lại một diện mạo mới mẻ cho trục đường từ sân bay Nội Bài về trung tâm Hà Nội.
<>Xem Thêm Bài Viết:<>- Mua Bán Nhà Đất: Hướng Dẫn Toàn Diện Và Xu Hướng Thị Trường
- Thị Trường Bất Động Sản 2025: Phân Tích Cơ Hội Mua Bán Nhà Đất Thông Minh
- Tổng quan toàn diện dự án Căn hộ chung cư BMC Quận 1
- Khám Phá Quy Hoạch Nhật Tựu Kim Bảng Hà Nam Toàn Diện
- Hà Nội Cách Hà Nam Bao Nhiêu Km: Hướng Dẫn Di Chuyển Chi Tiết
Kiến trúc kiêu sa về đêm
Không gian sống xanh và tiện nghi
Dự án Sunshine City còn được ví như một “Melbourne thu nhỏ” giữa lòng Hà Nội, với không gian bình yên và trong lành. Cảm hứng từ thành phố đáng sống nhất thế giới đã được hiện thực hóa qua hệ thống tiện ích xanh chuẩn mực bao gồm lõi cảnh quan rộng lớn, hồ tiểu cảnh, đường dạo bộ ven hồ, đài phun nước và cây xanh nội khu. Đây là một miền thiên nhiên thuần khiết, nơi cư dân căn hộ Sunshine City có thể tận hưởng cuộc sống xanh cùng những làn gió trong lành, tránh xa sự ồn ào của đô thị.
Không gian sống yên bình
Điểm nhấn không gian đặc biệt tại Sunshine City Bắc Từ Liêm là lõi cảnh quan độc đáo, nơi quy tụ các tuyến phố dạo bộ sầm uất, khu mua sắm nhộn nhịp và không gian cho các sự kiện văn hóa, âm nhạc. Nơi đây hứa hẹn trở thành một điểm đến hấp dẫn, biểu tượng của nhịp sống thời thượng, mang lại trải nghiệm độc đáo cho mọi lứa tuổi sinh sống và làm việc tại chung cư Bắc Từ Liêm này.
Vị trí đắc địa của Sunshine City
Vị trí là yếu tố then chốt quyết định giá trị của một dự án bất động sản. Sunshine City sở hữu tọa độ vàng tại bờ Nam sông Hồng, hưởng trọn sinh khí thịnh vượng từ dòng chảy tài lộc. Dự án nằm ngay sát Tòa tháp VietinBank, một biểu tượng tài chính mới của Hà Nội, minh chứng cho vị thế đẳng cấp của khu vực này.
Vị trí dự án nằm ở dải đất vàng
Tọa lạc tại tâm ngọc của “mảnh đất vàng” Nam Thăng Long và liền kề trung tâm hành chính mới của Hà Nội, dự án Sunshine City có khả năng kết nối thuận tiện đến lõi nội đô và các khu vực trọng điểm khác của thành phố. Điều này giúp cư dân dễ dàng di chuyển đến nơi làm việc, trường học, bệnh viện và các khu vui chơi giải trí, tối ưu hóa cuộc sống hiện đại. Đây là nơi giao hòa giữa giá trị truyền thống và nhịp sống đô thị sôi động, lý tưởng cho việc an cư lạc nghiệp tại Bắc Từ Liêm.
Hệ thống tiện ích đẳng cấp tại Sunshine City
Căn hộ chung cư S1 Sunshine City không chỉ gây ấn tượng bởi thiết kế và vị trí mà còn bởi hệ thống tiện ích vượt trội, đáp ứng mọi nhu cầu sống, làm việc và giải trí của cư dân. Dự án được phát triển với tầm nhìn kiến tạo một cuộc sống tiện nghi, đẳng cấp quốc tế ngay tại Hà Nội.
Tiện ích nội khu chuẩn 5 sao
Cư dân tại Sunshine City sẽ được hưởng thụ hơn 40 dịch vụ và tiện ích nội khu chuẩn 5 sao. Nổi bật có thể kể đến như sky bar lộng lẫy trên tầng thượng, bể bơi vô cực với tầm nhìn khoáng đạt, trường mầm non quốc tế chất lượng cao, và một trung tâm thể thao – giải trí phức hợp hiện đại bao gồm phòng gym, yoga, fitness, sauna, và spa. Chỉ một bước chân, cư dân có thể đến khu vực mua sắm sầm uất, hai bước đến phòng tập và ba bước đến không gian thư giãn tại bể bơi bốn mùa. Tất cả đều được bố trí hợp lý để tối đa hóa sự thuận tiện và trải nghiệm cho cư dân chung cư S1 Sunshine City.
Khu vực bar sang trọng
Tiện ích ngoại khu đa dạng
Ngoài các tiện ích nội khu phong phú, Sunshine City còn thừa hưởng những tiện ích sẵn có đẳng cấp của Khu đô thị Nam Thăng Long. Điều này bao gồm các sân golf, sân tennis hiện đại, và nhiều trường quốc tế danh tiếng như UNIS, SIS, Hanoi Academy. Sự kết nối thuận tiện với các tiện ích ngoại khu giúp cư dân dễ dàng tiếp cận các dịch vụ giáo dục, thể thao và giải trí hàng đầu, nâng tầm chất lượng cuộc sống tại khu căn hộ cao cấp Sunshine City.
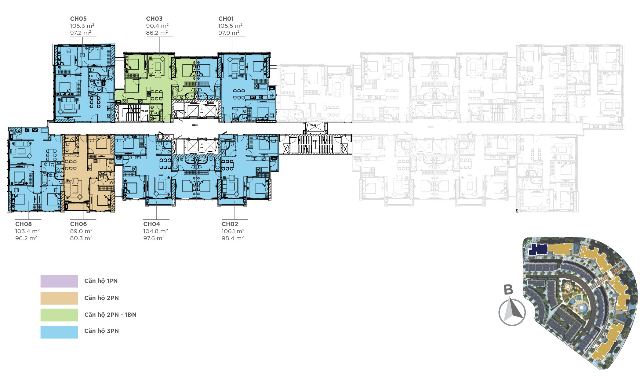
Chi tiết mặt bằng Căn hộ S1 Sunshine City
Việc tìm hiểu mặt bằng là yếu tố quan trọng giúp khách hàng hình dung rõ hơn về không gian sống và lựa chọn căn hộ phù hợp. Căn hộ chung cư S1 Sunshine City được thiết kế tối ưu với đa dạng các loại hình căn hộ, đáp ứng nhu cầu và sở thích khác nhau của cư dân.
Tổng thể mặt bằng dự án
Mặt bằng tổng thể của Sunshine City được quy hoạch khoa học, tạo nên một tổng thể hài hòa giữa các tòa chung cư cao tầng, biệt thự liền kề và hệ thống tiện ích cảnh quan. Mỗi không gian đều được tính toán tỉ mỉ để tối ưu hóa ánh sáng tự nhiên và thông gió, mang lại cảm giác thoáng đãng và dễ chịu cho cư dân. Sự phân bố hợp lý các khối nhà và mảng xanh tạo nên một tổng thể kiến trúc ấn tượng và không gian sống lý tưởng.
Mặt bằng tổng thể dự án
Mặt bằng các loại hình căn hộ
Căn hộ S1 Sunshine City cung cấp nhiều loại hình căn hộ đa dạng, từ căn hộ studio, căn 2 phòng ngủ, 3 phòng ngủ đến các căn penthouse, phù hợp với nhu cầu của các gia đình nhỏ, người độc thân hay gia đình đa thế hệ. Mỗi căn hộ đều được thiết kế tối ưu công năng sử dụng, với không gian mở, ban công rộng rãi và nội thất cao cấp. Các phòng chức năng được bố trí hợp lý, đảm bảo sự riêng tư nhưng vẫn tạo cảm giác kết nối trong tổng thể căn nhà, mang đến một trải nghiệm sống tiện nghi và thoải mái.
Mặt bằng căn hộ 01
Mặt bằng căn hộ 02
Mặt bằng căn hộ 03
Các câu hỏi thường gặp về Căn hộ chung cư S1 Sunshine City
Chủ đầu tư dự án Sunshine City là ai?
Chủ đầu tư của dự án Sunshine City là Tập đoàn Sunshine Group, một trong những tập đoàn bất động sản hàng đầu tại Việt Nam, nổi tiếng với các dự án cao cấp và ứng dụng công nghệ hiện đại.
Vị trí cụ thể của Căn hộ chung cư S1 Sunshine City ở đâu?
Căn hộ chung cư S1 Sunshine City tọa lạc tại Khu Đô thị Ciputra – Nam Thăng Long, thuộc Phường Đông Ngạc, Quận Bắc Từ Liêm, Hà Nội, ngay sát tòa tháp VietinBank và trung tâm hành chính mới.
Dự án Sunshine City có những loại hình sản phẩm nào?
Dự án Sunshine City bao gồm hai loại hình sản phẩm chính là căn hộ chung cư cao cấp và biệt thự liền kề Shophouse.
Tiện ích nổi bật tại Sunshine City là gì?
Sunshine City sở hữu hơn 40 tiện ích nội khu đẳng cấp 5 sao như sky bar, bể bơi vô cực, trường mầm non quốc tế, trung tâm thể thao phức hợp, siêu thị, cùng việc thừa hưởng các tiện ích ngoại khu của Ciputra.
Thời gian hoàn thành của Căn hộ chung cư S1 Sunshine City là khi nào?
Dự án Căn hộ chung cư S1 Sunshine City đã được hoàn thành và đi vào sử dụng từ Quý III/2019.
Căn hộ Sunshine City có sổ đỏ vĩnh viễn không?
Các căn hộ tại Sunshine City có hình thức sở hữu sổ đỏ vĩnh viễn, đảm bảo quyền lợi pháp lý cho người sở hữu.
Căn hộ chung cư S1 Sunshine City có phù hợp để đầu tư không?
Với vị trí đắc địa, tiện ích đẳng cấp, và uy tín từ chủ đầu tư Sunshine Group, Căn hộ chung cư S1 Sunshine City được đánh giá là một lựa chọn tiềm năng cho cả mục đích an cư lẫn đầu tư.
Căn hộ chung cư S1 Sunshine City không chỉ là một nơi an cư lý tưởng mà còn là biểu tượng của cuộc sống hiện đại và đẳng cấp tại Hà Nội. Từ vị trí đắc địa đến hệ thống tiện ích đa dạng và thiết kế kiến trúc ấn tượng, Sunshine City hứa hẹn mang đến những trải nghiệm sống vượt trội cho cư dân. Nếu bạn đang tìm kiếm một không gian sống hoàn hảo, hãy cân nhắc tìm hiểu thêm về dự án Sunshine City tại SummerLand để có cái nhìn chi tiết và toàn diện nhất.





